Overview of the Baker Walkout Floor Plan
The Baker Walkout floor plan is designed to maximize space and functionality, offering a spacious layout that caters to modern living. With a total area of 2,800 square feet, this home is ideal for families seeking both comfort and style.
This floor plan features three bedrooms, including a master suite with an ensuite bathroom, and a total of 3.5 bathrooms to accommodate guests and family needs. The open-concept design allows for seamless transitions between the kitchen, dining, and living areas, making it perfect for entertaining or family gatherings.
Customization Options for Your Home
Canvas Hill offers a variety of customization options for the Baker Walkout floor plan, allowing buyers to tailor their homes to meet personal preferences and lifestyle needs. From selecting finishes to modifying layouts, potential homeowners can create a space that truly reflects their style.
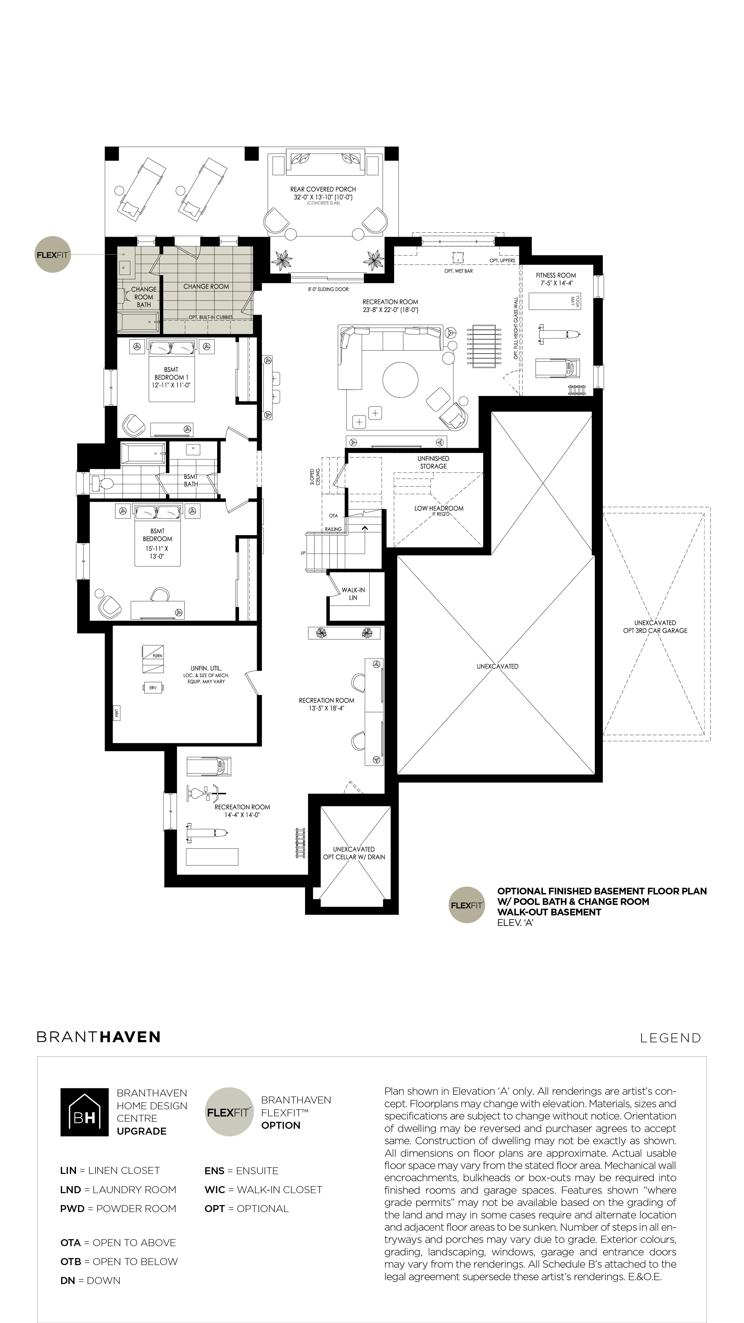
Examples of customization options include different cabinetry styles, countertop materials, and flooring choices, as well as the ability to add features such as a finished basement or upgraded appliances. This flexibility ensures that each home is unique and suited to the homeowner's vision.
Visual Representations of the Baker Walkout
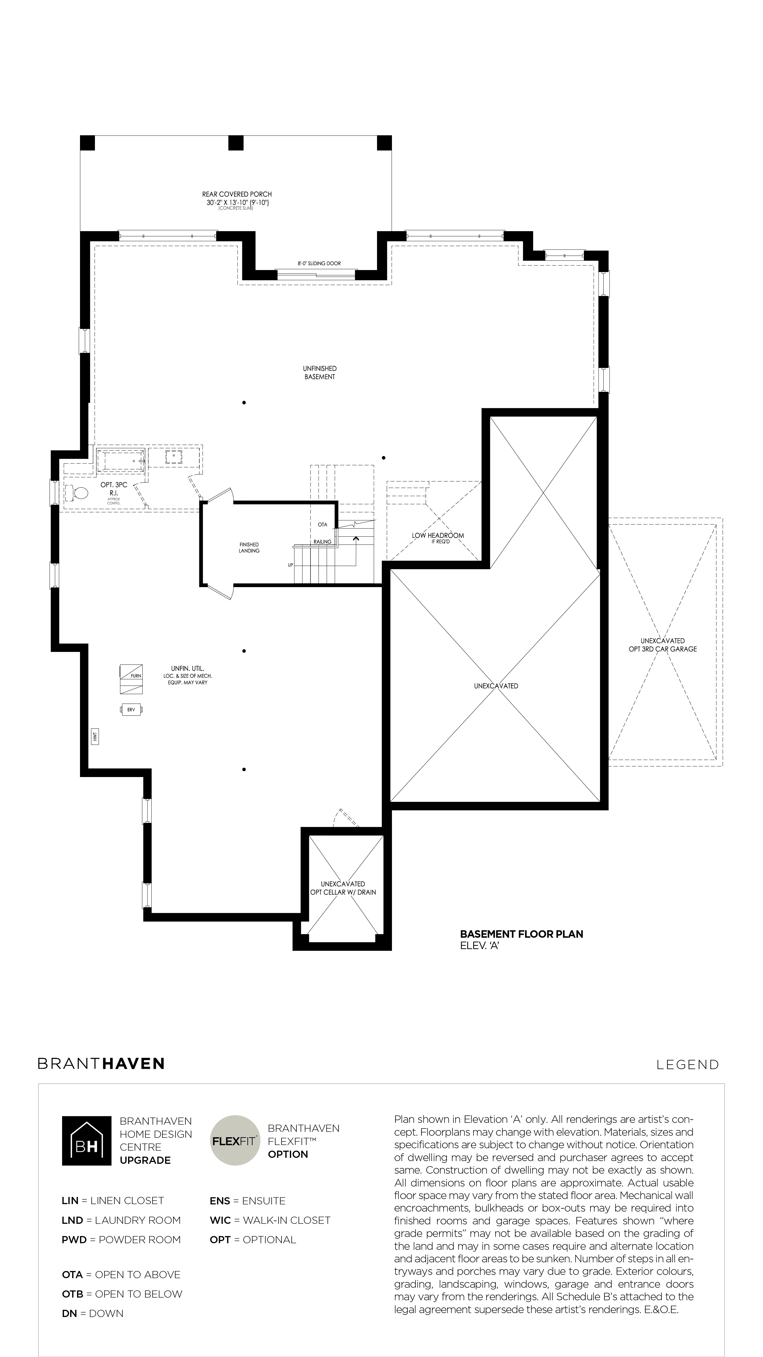
To help potential buyers envision their future home, Canvas Hill provides a range of visual representations of the Baker Walkout floor plan. These include high-quality images, 3D renderings, and virtual tours that showcase the design and layout of the home.
Community Features and Amenities
The Canvas Hill community offers a wealth of features and amenities that enhance the living experience for residents. From parks and recreational facilities to shopping and dining options, the neighborhood is designed to foster a vibrant and connected lifestyle.
Residents can enjoy nearby walking trails, playgrounds, and community events that promote social interaction and a sense of belonging. Additionally, the strategic location of Canvas Hill ensures easy access to major transportation routes, making commuting and travel convenient for families.