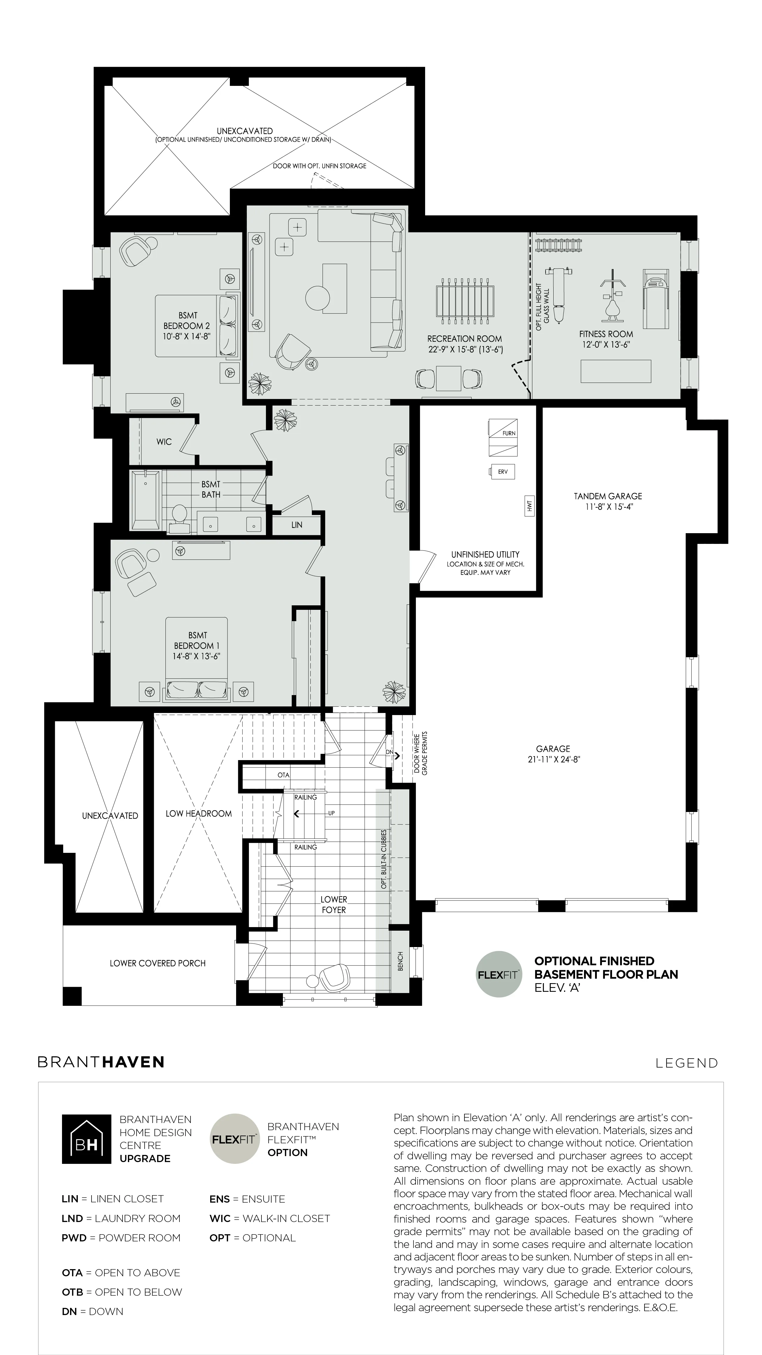
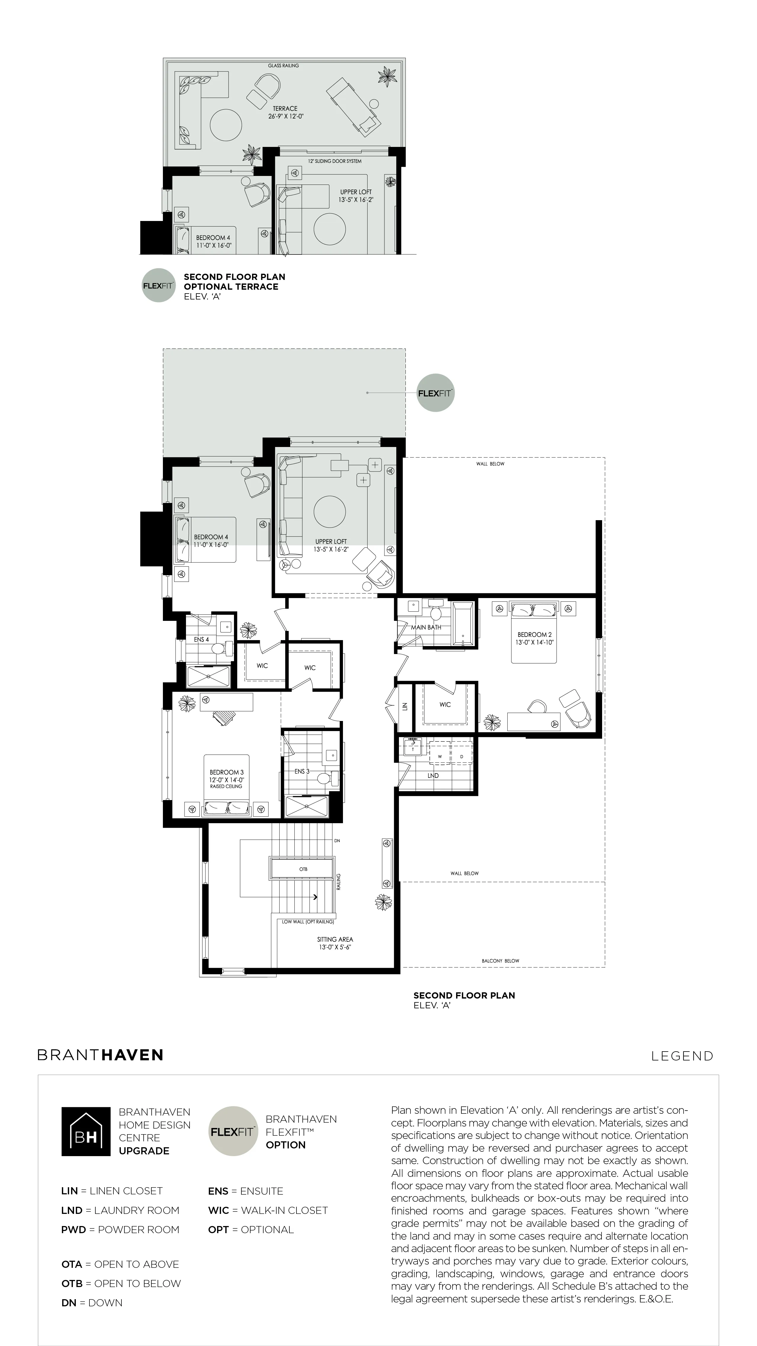
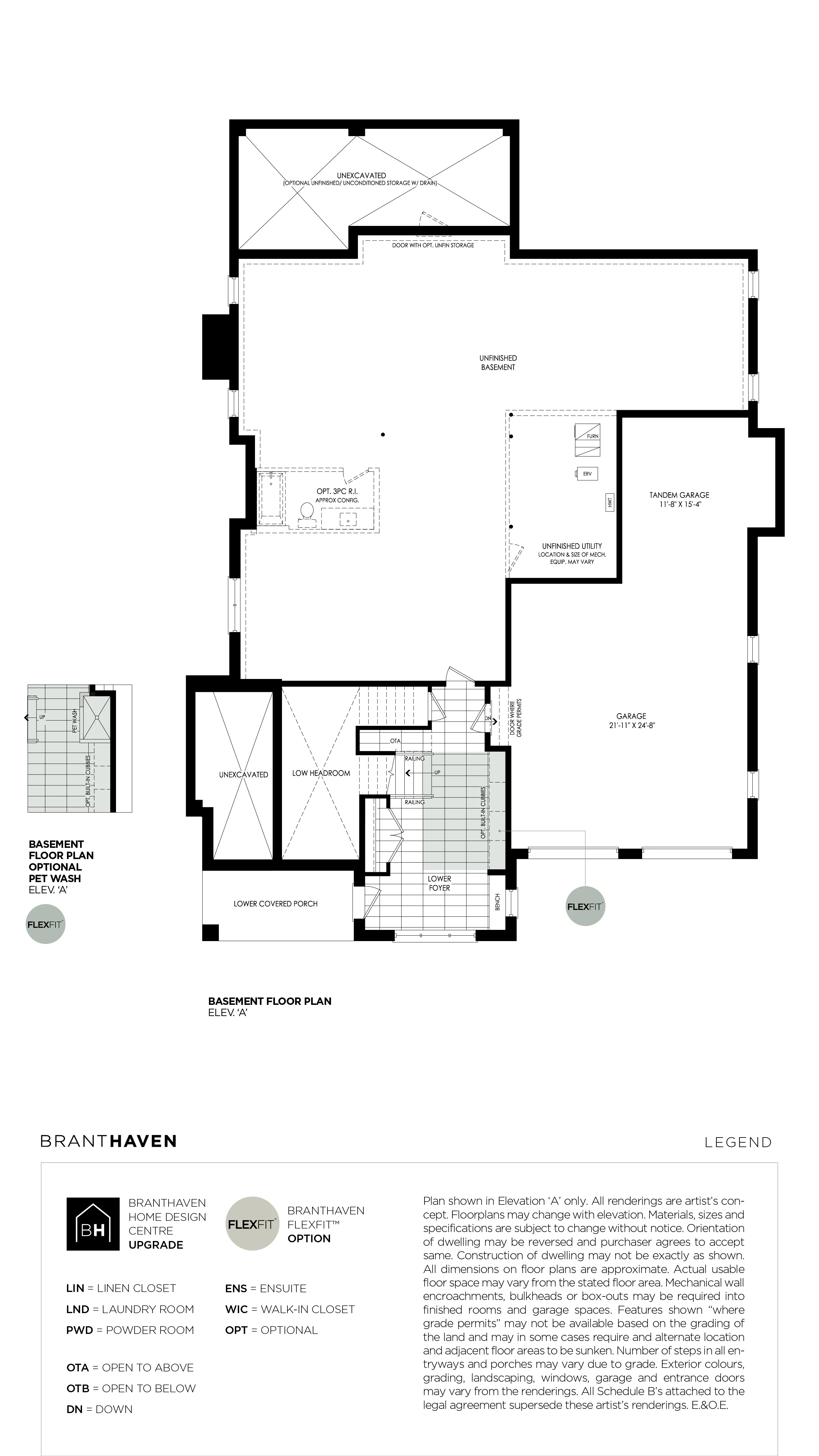
Overview of the Lawson Floor Plan
The Lawson floor plan is designed to offer spacious living with a total area of 4,880 square feet, making it ideal for families looking for comfort and functionality. This layout includes four bedrooms and 4.5 bathrooms, ensuring ample space for relaxation and privacy.
With its open-concept design, the Lawson floor plan maximizes natural light and flow between living areas. The optional terrace adds an extra dimension to outdoor living, while the two-car garage provides practical storage and convenience for homeowners.
Features and Specifications
The Lawson floor plan boasts a range of features that cater to modern living needs. Key specifications include a large open space that can be customized to suit personal preferences, as well as energy-efficient appliances that reduce utility costs.
Additionally, the floor plan offers multiple elevation options, allowing buyers to choose a style that complements their aesthetic vision. The thoughtful design also incorporates storage solutions throughout the home, enhancing organization and usability.
Visual Representations
Visual representations of the Lawson floor plan are available to provide potential buyers with a clearer understanding of the layout and design. These images showcase both interior and exterior perspectives, highlighting the elegance and functionality of the home.
By viewing the various elevations and floor plan options, buyers can better envision their future living space. This visual content is essential for making informed decisions about customization and personal touches.
Downloadable Resources
To assist prospective homeowners, we offer downloadable resources that include detailed floor plans and design guides. These documents provide comprehensive information about the Lawson floor plan, making it easier for buyers to review their options.