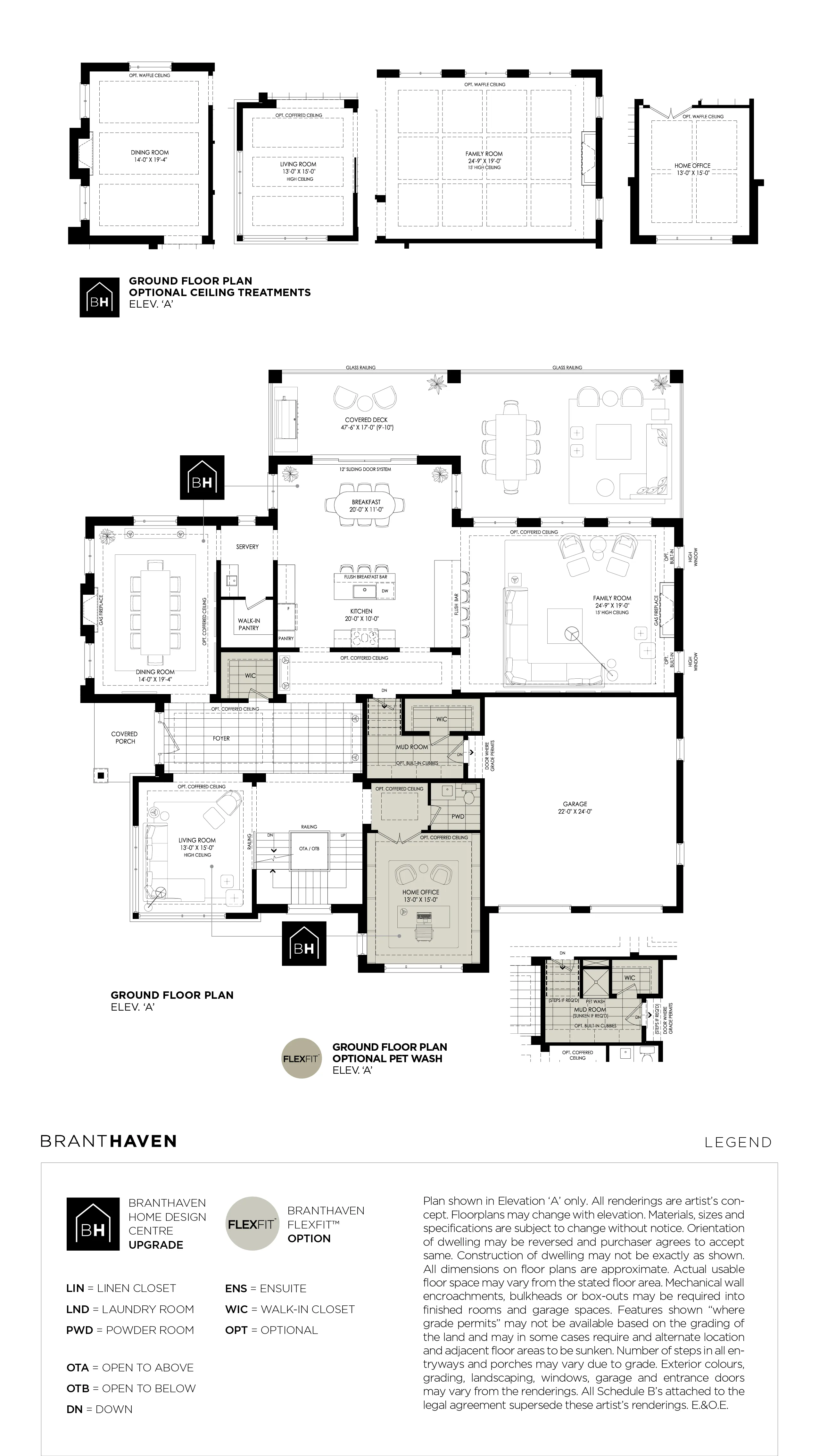
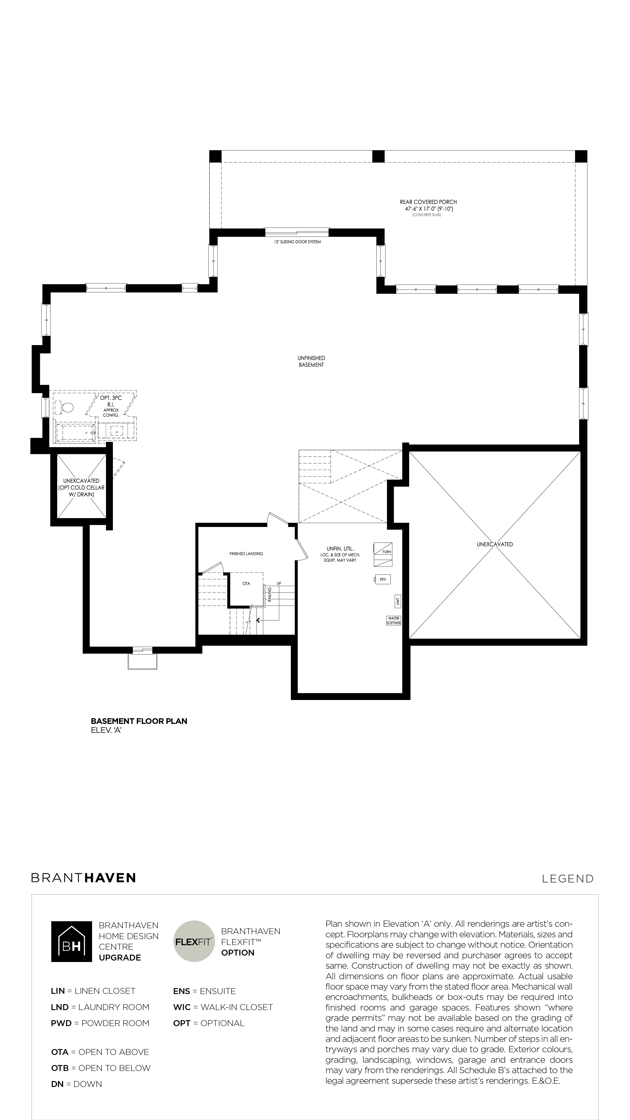
Overview of the Sheridan Walkout Floor Plan
The Sheridan Walkout floor plan is designed to offer spacious living with a total area of 5,010 square feet, providing ample room for families. This layout includes four bedrooms and 4.5 bathrooms, making it ideal for larger households or those who enjoy hosting guests.
In addition to its generous square footage, the Sheridan features an open concept design that enhances the flow of natural light throughout the home. With options for customization, homeowners can tailor the space to fit their unique lifestyle and preferences, ensuring a perfect fit for any family.
Key Features and Specifications
The Sheridan Walkout floor plan boasts several key specifications that set it apart from other models. Notable features include a two-car garage, and optional pet wash, which adds convenience for pet owners. The design also incorporates areas that are open to below, creating a sense of grandeur and spaciousness.
Furthermore, the layout offers various options for finishing the basement, which can be tailored to include recreational spaces or additional bedrooms. This flexibility allows homeowners to maximize their living area according to their needs, making the Sheridan a versatile choice for modern living.
Visual Representations of the Sheridan
To assist potential buyers in visualizing their future home, the Sheridan Walkout floor plan includes detailed images and diagrams. These visuals showcase the layout and design elements, allowing users to understand how the space can be utilized effectively.
Moreover, prospective buyers can download the floor plan directly from the website, enabling them to review the design in detail. This feature is particularly beneficial for those considering customization options, as it provides a tangible reference for discussions with design consultants.
Customization Options Available
The Sheridan Walkout floor plan offers a range of customization options to meet the specific needs and desires of homeowners. From selecting finishes to modifying layouts, buyers can personalize their space to reflect their style and preferences.
Examples of customization include choosing different flooring materials, cabinetry styles, and even layout adjustments, such as adding an extra bedroom or reconfiguring the basement. This level of flexibility ensures that each home is uniquely tailored, providing a sense of ownership and individuality to every resident.