Frequently Asked Questions
None - No questions provided for evaluation?
No questions have been provided for evaluation, indicating that there may be a lack of inquiries from users regarding the Canvas Hill development or 'The William with Elevator' model.
What features does Canvas Hill offer?
The features that Canvas Hill offers include luxury residential homes with modern floor plans, high-end finishes, spacious layouts, and amenities such as elevators, ensuring comfort and elegance for discerning buyers.
How many bedrooms are in The William?
The William features a total of 4 spacious bedrooms, designed to provide luxury and comfort for residents.
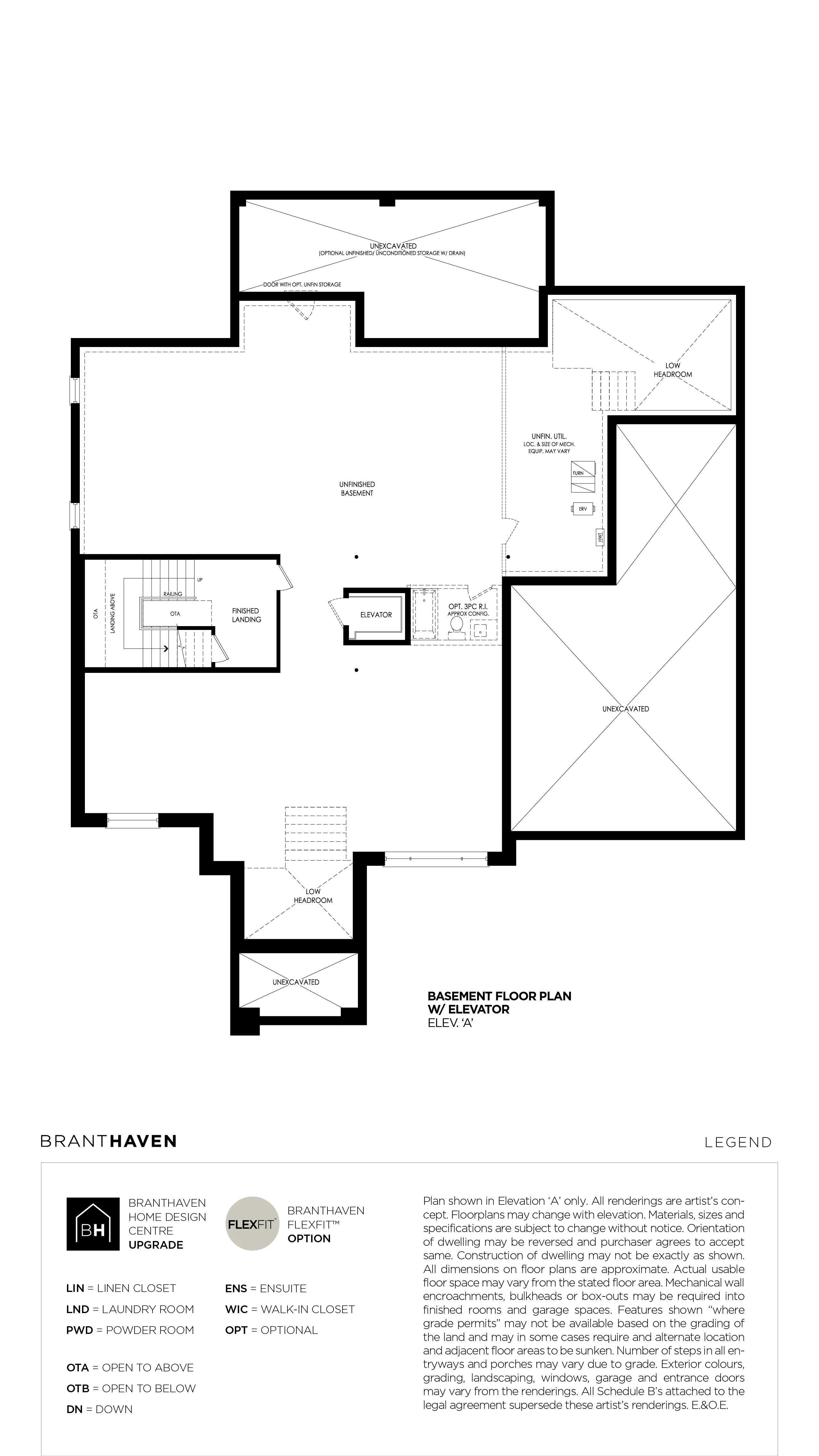
Is there an elevator in The William?
The William features an elevator, providing convenient access to all levels of this luxury home, enhancing both comfort and accessibility for residents.
What are the specifications of The William?
The specifications of The William include 4 bedrooms, 4.5 bathrooms, and an elevator, designed to offer luxury living and convenience in a spacious layout.
Can I download the floor plan?
The ability to download the floor plan is available. You can easily access and download the floor plan for 'The William with Elevator' directly from our website for your convenience.
What luxury amenities are included?
The luxury amenities included in 'The William with Elevator' feature high-end finishes, gourmet kitchens, spacious outdoor living areas, and state-of-the-art appliances, ensuring a comfortable and elegant lifestyle for residents.
How can I schedule a visit?
Scheduling a visit is simple. You can contact our sales team through the website or call us directly to arrange a convenient time for your tour of The William with Elevator.
What is the price range for The William?
The price range for The William varies based on specific features and upgrades, typically starting in the mid-$800,000s and extending to over $1 million. For precise pricing, please contact our sales representatives.
Are there any available units left?
The availability of units at Canvas Hill is subject to change. Please contact our sales team for the most up-to-date information on available units for 'The William with Elevator' and other luxury homes.
What is the square footage of The William?
The square footage of The William is approximately 3,200 square feet, offering ample space for luxurious living and comfort in this stunning home model.
What are the nearby attractions?
The nearby attractions include scenic parks, upscale shopping centers, and fine dining options, making Canvas Hill an ideal location for residents seeking both leisure and luxury experiences.
How does Canvas Hill ensure quality?
Canvas Hill ensures quality through meticulous construction practices, premium materials, and rigorous inspections at every stage of development. Our commitment to excellence guarantees that each luxury home meets the highest standards of craftsmanship and durability.
What is the expected completion date?
The expected completion date for Canvas Hill's 'The William with Elevator' is projected for late 2024. Please check back for updates as we progress through the construction phases.
Are there customization options available?
Customization options are available for 'The William with Elevator', allowing you to tailor various aspects of the home to suit your preferences and lifestyle.
What financing options are offered?
The financing options offered include various mortgage plans, customizable payment structures, and potential assistance programs to accommodate different buyer needs, ensuring a flexible approach to purchasing your luxury home at Canvas Hill.
How can I contact sales representatives?
You can contact our sales representatives by visiting the Canvas Hill website and filling out the inquiry form, or by calling our dedicated sales line for immediate assistance.
What is the layout of The William?
The layout of The William features a spacious design with 4 bedrooms, 4.5 bathrooms, and an elevator, ensuring both luxury and convenience throughout the home.
Are pets allowed in The William?
Pets are allowed in The William, making it a welcoming home for pet owners. Enjoy the luxury of your new residence alongside your furry companions.
What is the parking situation like?
The parking situation at Canvas Hill is convenient, with ample designated parking spaces available for residents and guests, ensuring easy access to your luxury home.