Overview of the William Floor Plan
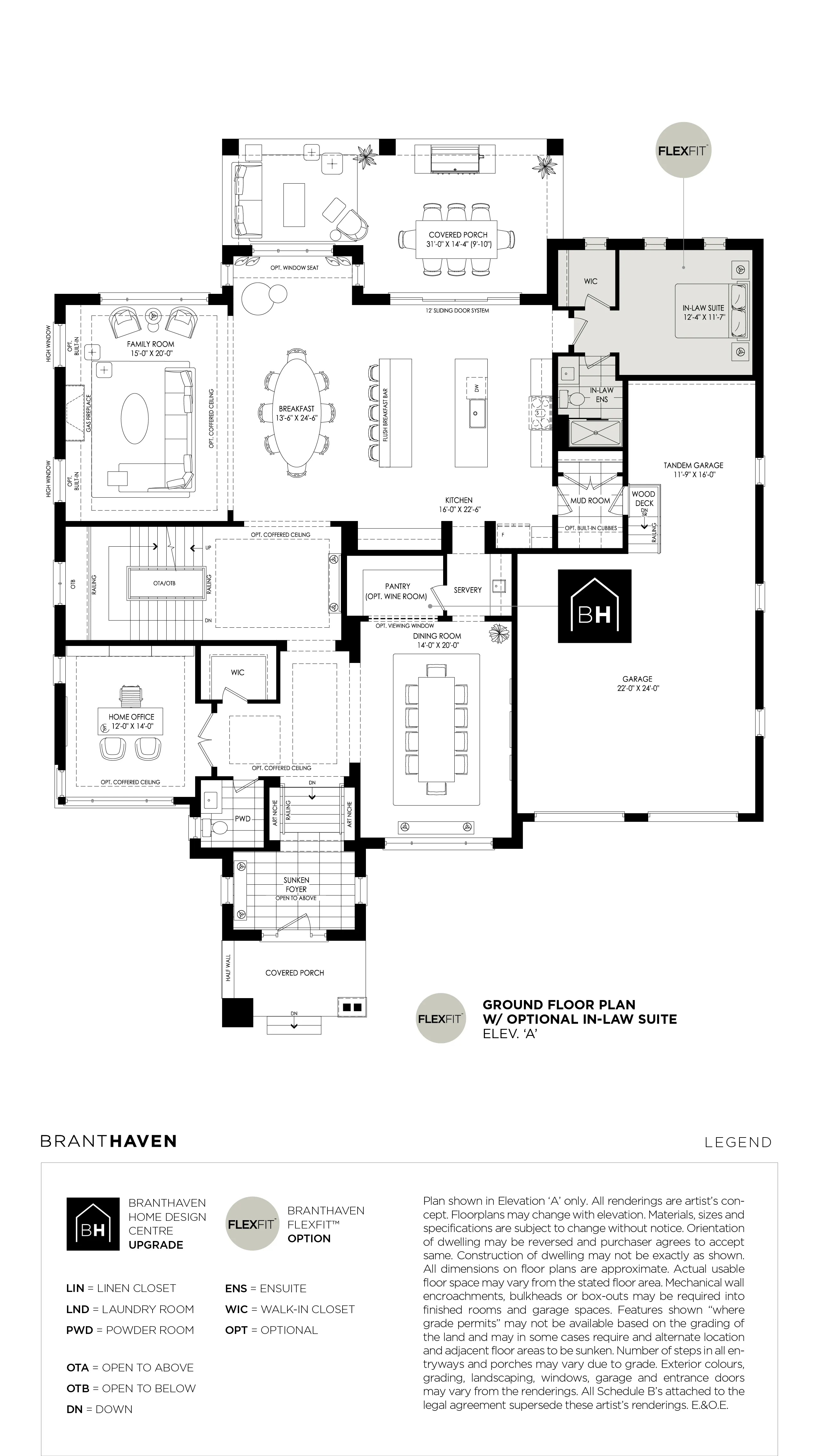
The William floor plan is designed to provide spacious living with a total area of 5,815 square feet. This layout features a modern design with an emphasis on functionality, making it ideal for families and individuals looking for comfort and style.
With four bedrooms and 4.5 bathrooms, the William floor plan accommodates various lifestyle needs. The inclusion of a two-car garage and multiple elevation options allows for customization, ensuring that each homeowner can create a space that reflects their personal taste.
Key Features and Specifications
The William floor plan boasts several key features that enhance its appeal. Notable specifications include an open-concept living area, a covered porch, and ample storage throughout the home.
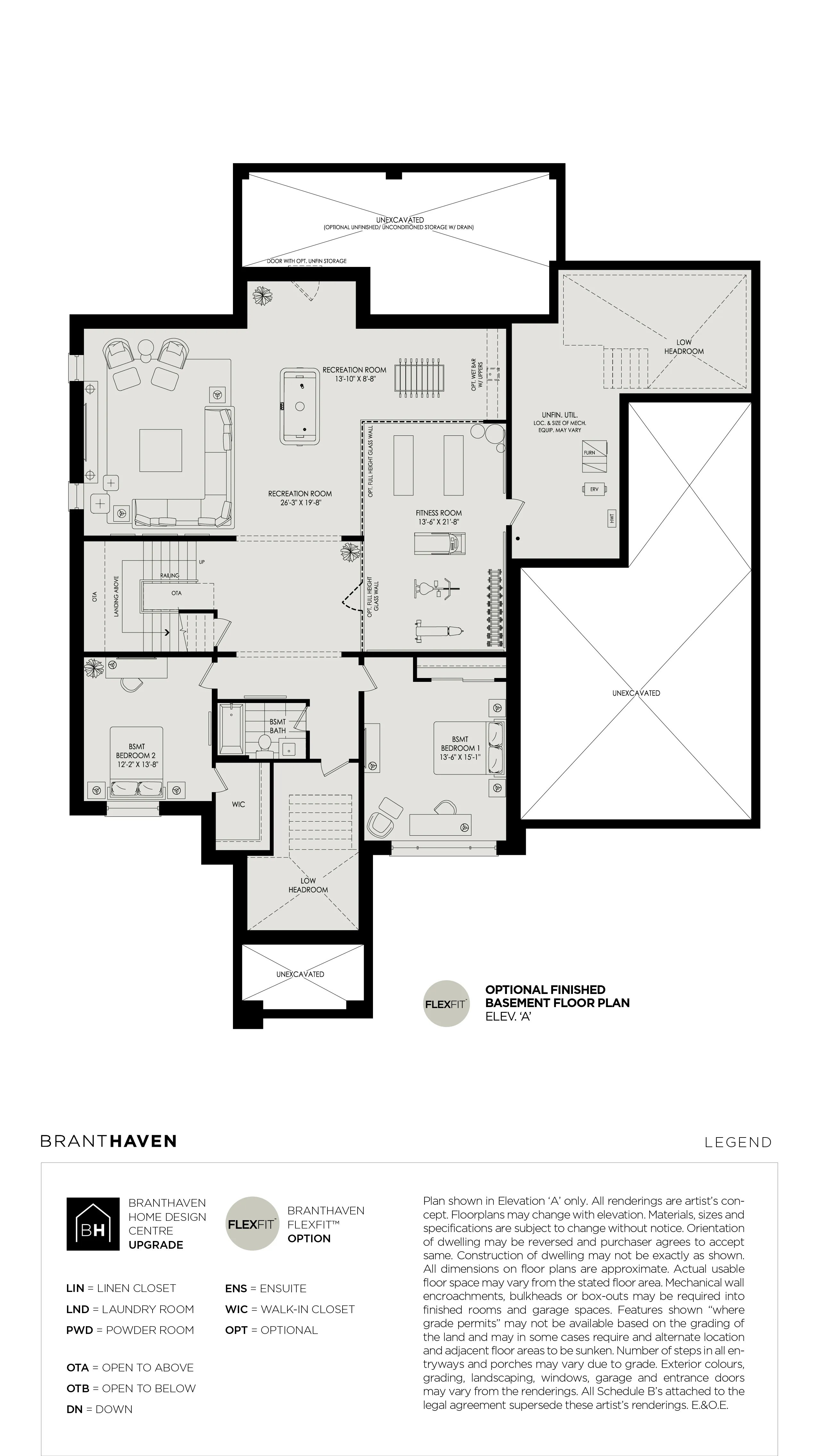
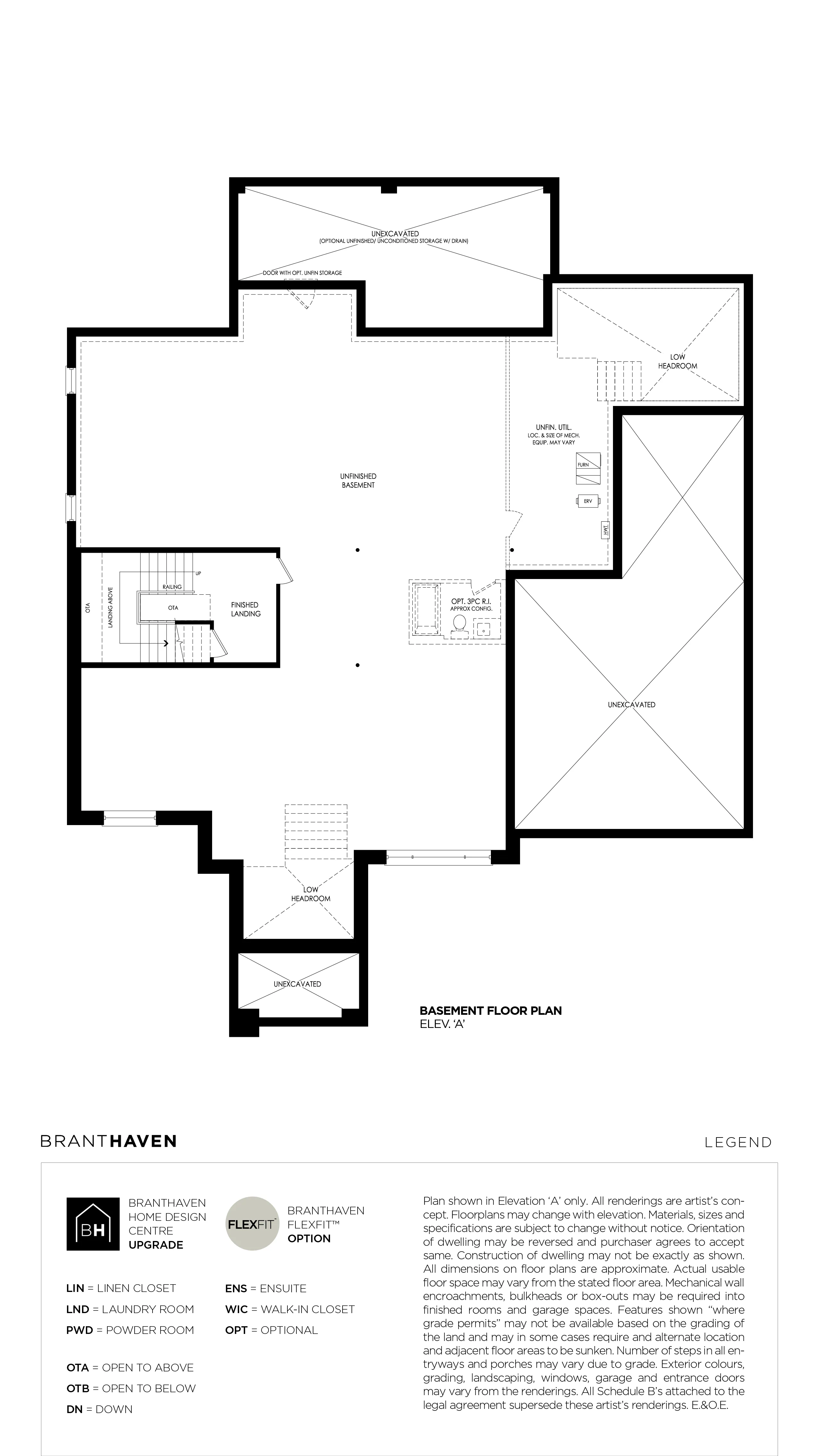
Additionally, the layout includes options for an in-law suite and a finished basement, providing versatility for growing families or those looking to entertain guests. The design prioritizes both aesthetics and practicality, ensuring a welcoming environment for all residents.
Elevations Available for the William Floor Plan
Canvas Hill offers multiple elevations for the William floor plan, allowing homeowners to choose a façade that best suits their style. Elevation A presents a classic look with traditional elements, while Elevation B features a more contemporary design with sleek lines.
This variety not only enhances the visual appeal of the home but also allows for greater personalization. Prospective buyers can visualize how different elevations will complement their landscape, making it easier to select a design that fits their vision.
How to Request More Information
In addition to the contact form, interested individuals can also call the sales representatives directly at 905-333-6152 or visit the presentation centre located at 515 Main Street, Georgetown, ON, for a more hands-on experience with the floor plan options.