Overview of the Montgomery Walkout Floor Plan
The Montgomery Walkout floor plan is designed to provide spacious living with a total area of 5,030 square feet. This layout features an open-concept design that maximizes natural light and enhances the flow between living spaces, making it ideal for family gatherings and entertaining guests.
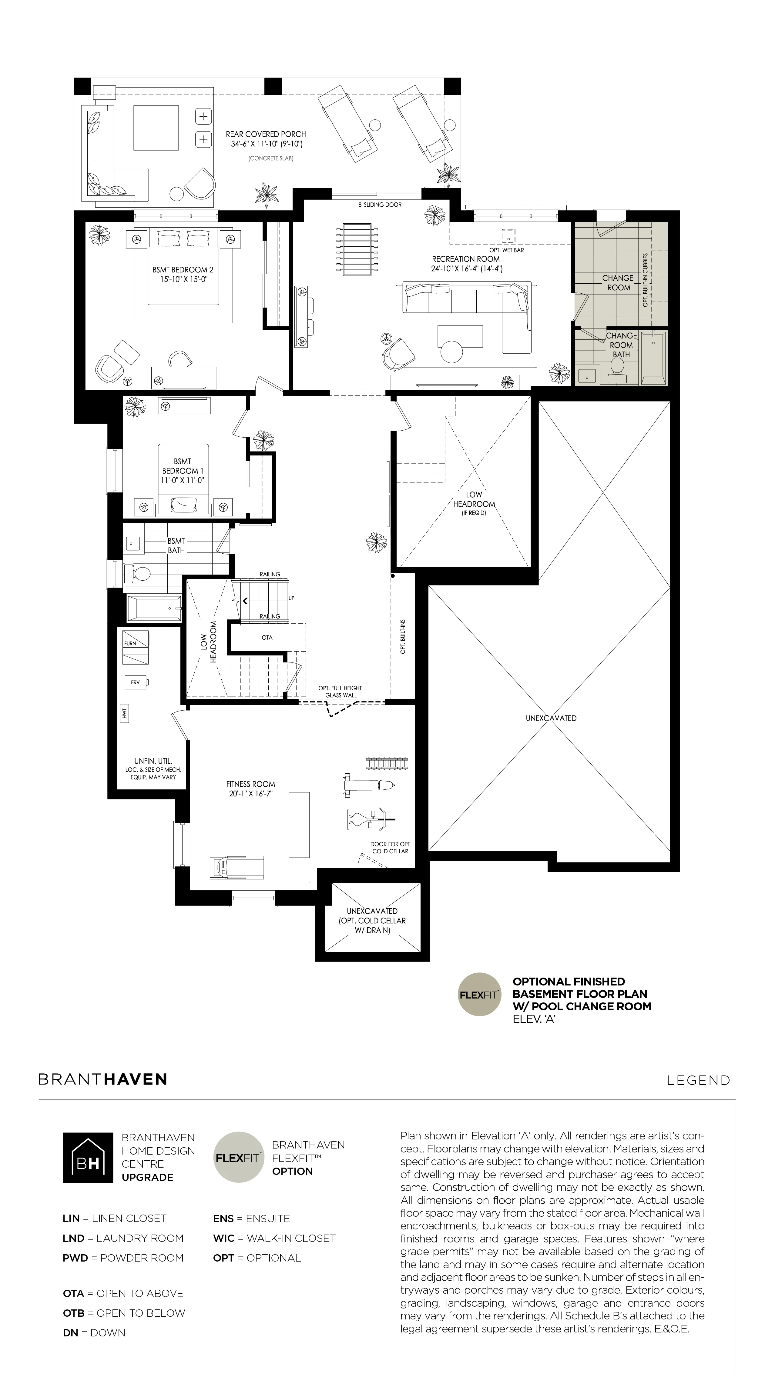
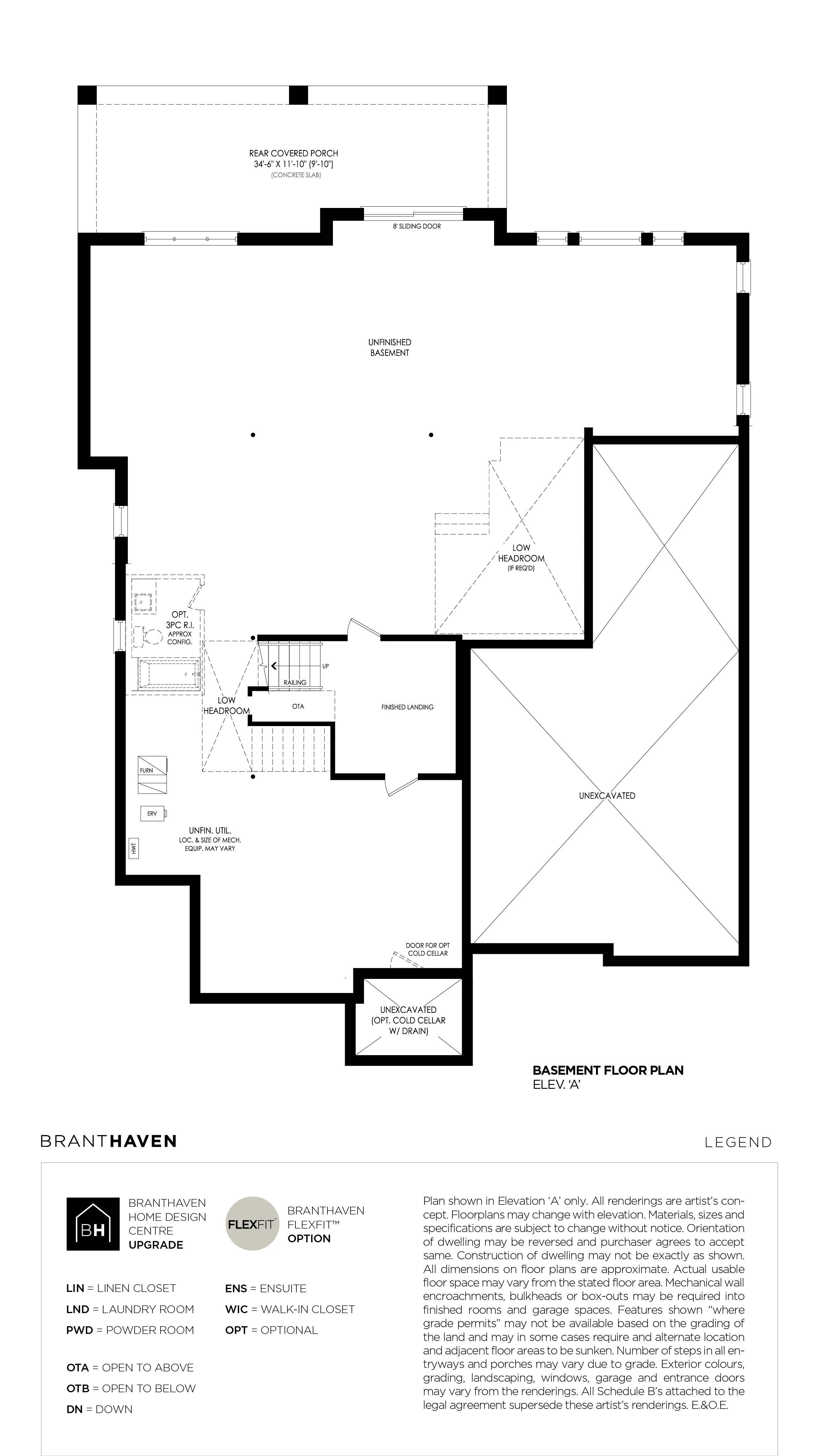
With four bedrooms and 4.5 bathrooms, the Montgomery Walkout accommodates larger families or those who frequently host visitors. Additionally, the option for a finished basement allows for further customization, providing extra living space that can serve as a recreation room or guest suite.
Key Features of the Montgomery Walkout
The Montgomery Walkout floor plan boasts several key features that set it apart from other models. Notable attributes include a two-car garage, optional pet wash area, and multiple elevations that allow buyers to choose a design that best fits their aesthetic preferences.
Moreover, the layout includes a large kitchen with modern appliances and ample counter space, perfect for cooking enthusiasts. The inclusion of an optional in-law suite on the ground floor offers versatility for multi-generational living or rental opportunities.
Available Customization Options
Canvas Hill provides a range of customization options for the Montgomery Walkout floor plan, allowing buyers to tailor their home to their specific needs. From selecting finishes and fixtures to modifying room layouts, potential homeowners can create a space that reflects their personal style.
For instance, buyers can choose from various flooring materials, cabinetry styles, and countertop finishes. Additionally, the option to finish the basement can include features like a home theater or gym, providing further flexibility in how the space is utilized.
Community Amenities at Canvas Hill
Living in the Canvas Hill community offers residents access to a variety of amenities designed to enhance their lifestyle. The development features beautifully landscaped parks, walking trails, and recreational facilities that promote outdoor activities and community engagement.
Moreover, the proximity to local schools, shopping centers, and dining options ensures that residents have convenient access to essential services. The community atmosphere fosters a sense of belonging, making it an attractive choice for families and individuals alike.