Branthaven Homes is a registered builder with the Home Construction Regulatory Authority (HCRA), ensuring consumer protection and high standards in homebuilding.
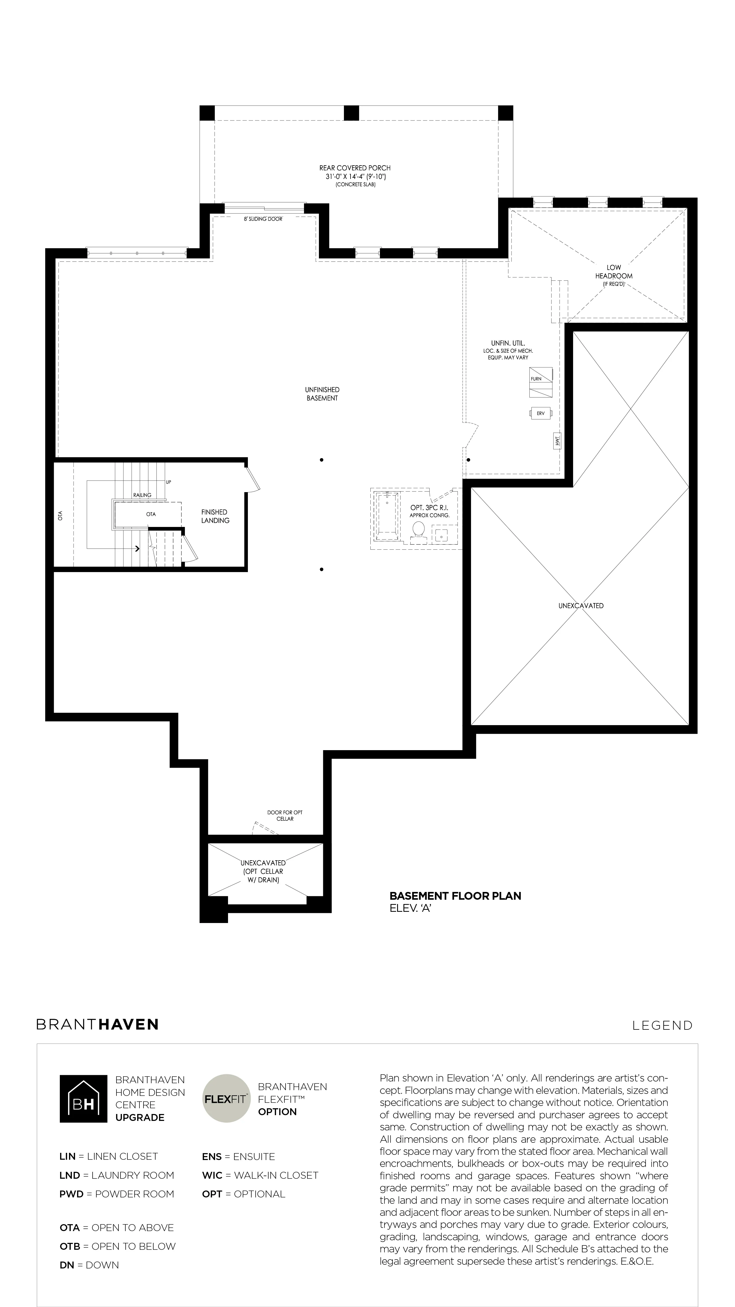
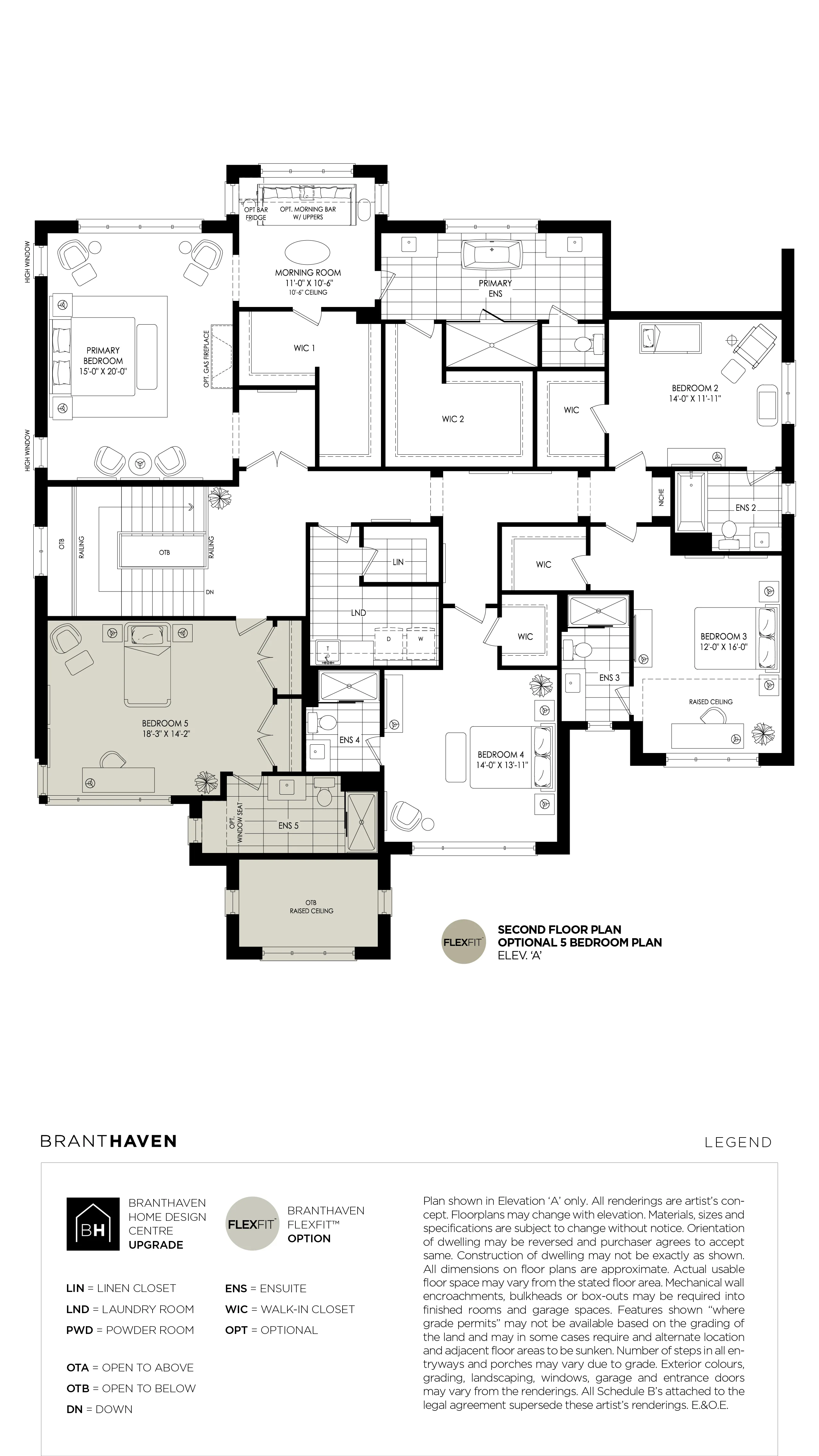
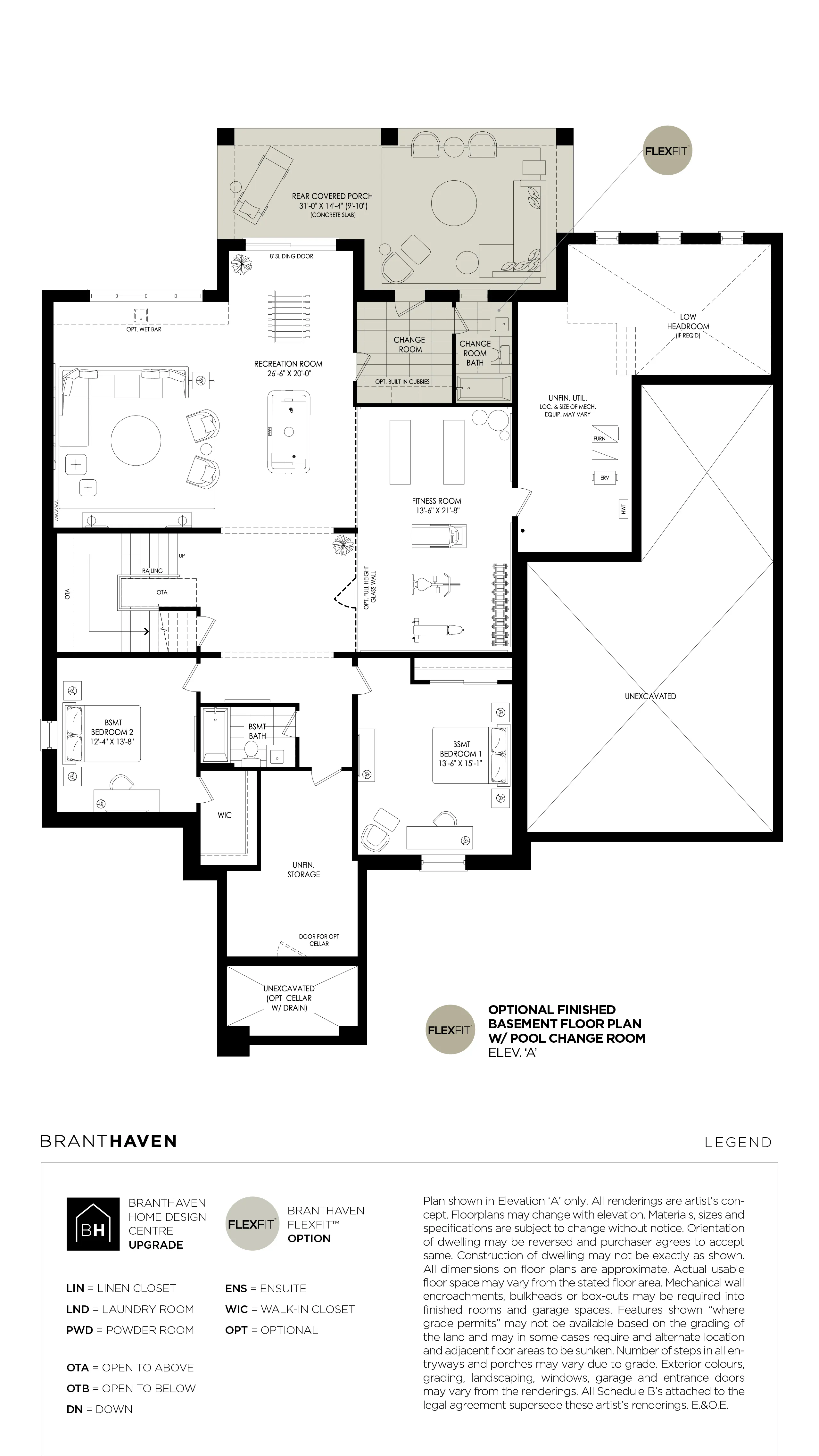
The William floor plan is designed to provide spacious living with a total area of 5,820 square feet. It features four bedrooms, including an optional in-law suite, and 4.5 bathrooms, making it ideal for families of various sizes. The layout emphasizes both functionality and comfort, ensuring that residents can enjoy their living space to the fullest.
This floor plan is strategically designed with an open concept in mind, allowing for seamless transitions between the kitchen, dining, and living areas. The optional in-law suite adds versatility for extended family or guests, while the two-car garage offers convenience and storage solutions for homeowners.
Amenities and Features
The William includes several high-end amenities that enhance the living experience. Notable features include an optional finished basement that can be customized to suit personal preferences, as well as various elevation options to match the aesthetic of the neighborhood. Homeowners can choose from different layouts and finishes to create a space that reflects their style.
Purchasing Process and Options
Branthaven Homes offers a streamlined purchasing process for potential buyers interested in The William floor plan. Interested individuals can request information regarding pricing, incentives, and financing options directly through the website or by contacting the sales representatives. This ensures that prospective buyers have all the necessary information to make informed decisions.
Community and Location Benefits
The William is located in the desirable Glen Williams area, known for its picturesque landscapes and community-oriented environment. Residents benefit from proximity to local amenities, including parks, schools, and shopping centers, making it an ideal location for families and individuals alike.